façade avant travaux


le projet n'a pas modifié les ouvertures de la façade principale par respect pour l'unité architectural du village.

les menuiseries bois s ont seulement été remplacées aux mêmes  proportions. 

la maison a été divisée en 3 lots distincts, créant ainsi une copropriété de 3 propriétaires; chaque lot étant accessible par le rez de chaussée.

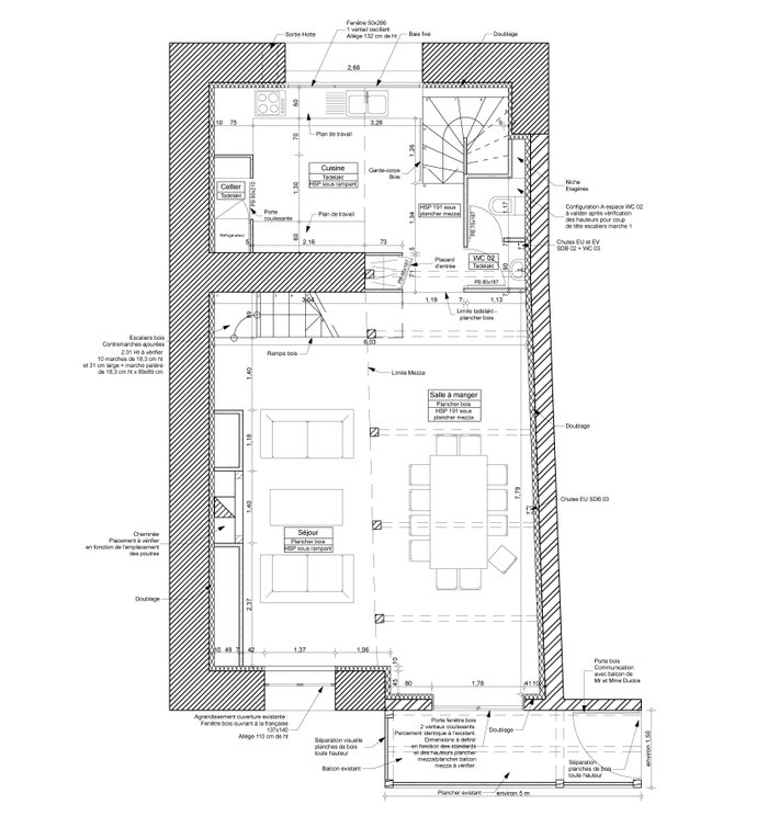
le volume originel du lot concerné par la projet était réparti sur 3 niveaux: une surface minime au  rez de chaussée,  davantage développée au 1er étage et principale au 2ème étage.  l'espace nu de ce niveau jouissait  d'une belle hauteur sous toiture.

l'importante hauteur sous toiture a permis la création d'un étage supplémentaire afin de développer la surface habitable. 3 chambres, 2 salles de bains, 2 wc et un maximum de rangements ont ainsi été distribué sur ce niveau qui ne s'insère  que partiellement dans le volume pour ne pas l'écraser. un vide sur séjour et cuisine donne la respiration  et la lumière nécessaires au juste dessin des espaces.